添加微信好友
                外圆磨陶瓷金刚石砂轮用于大型圆柱形磨床对PCD刀具的磨削。在汽车工业中,PCD刀具包括PCD型材铣刀、PCD铰刀和PCD铣刀。
                                                PCD切削刃精密测量的应用实例
磨床的精密加工过程往往要求达到非常精确的尺寸公差、几何公差和极高的表面质量。PCD刀具刃口经过反复测量、研磨、测量等。直径公差可达+/-1.5微米,效果非常好。
     
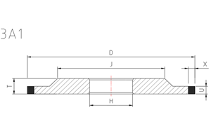
| Model | D直径 (mm) | T厚度 (mm) | H内孔 (mm) | X环宽 (mm) | U环厚 (mm) | 
| 3A1 & 14A1 | 300 | 20 | 127 | 10 | 10 | 
| 350 | 20 | 127 | 10 | 6 | |
| 400 | 35 | 152.4 | 10 | 7 | |
| 其它规格型号可根据客户需求定制。 | |||||